Категории
Кран шаровой стандартнопроходной 380 резьбовой
Характеристики
Макс. температура (Т) °С.: до +80 °С
Мин. температура (Т) °С.: до -40 °С (исп. У), до -60 °С (исп. ХЛ)
Класс герметичности: Класс «А» ГОСТ 9544-2015
Срок службы: Не менее 40 лет.
Гарантийный срок: 3 года или не менее 10 000 циклов
Тип присоединения:
резьбовое/резьбовое
Рабочая среда:
Природный газ, сжиженный углеводородный газ и другие газообразные среды, неагрессивные для материалов деталей крана.
Модификации
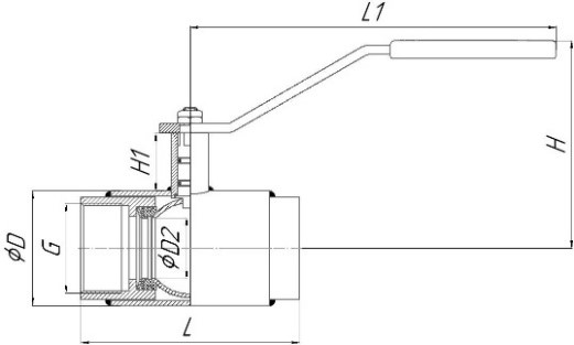
| Артикул | DN | PN | L | L1 | H | H1 | D | R | D2 | Вес | |
|---|---|---|---|---|---|---|---|---|---|---|---|
| 38020015 | 15 | 40 | 100 | 157,5 | 67 | 15,5 | 42 | 1/2 | 10 | 0,72 | |
| 38020020 | 20 | 40 | 100 | 157,5 | 69 | 17,5 | 42 | 3/4 | 15 | 0,72 | |
| 38020025 | 25 | 40 | 100 | 157,5 | 72 | 17 | 48 | 1 | 18 | 0,91 | |
| 38020032 | 32 | 40 | 85 | 157,5 | 76 | 17 | 57 | 1 1/4 | 24 | 1,00 | |
| 38020040 | 40 | 40 | 120 | 240 | 126 | 37,5 | 60 | 1 1/2 | 30 | 2,00 | |
| 38020050 | 50 | 40 | 145 | 240 | 134,5 | 38 | 76 | 72 | 40 | 2/95 | |
| 38020065 | 65 | 25 | 190 | 240 | 142 | 39 | 89 | 2 1/2 | 48 | 3,76 | |
| 38020080 | 80 | 25 | 200 | 276 | 172,5 | 57 | 114 | 3 | 63 | 6,14 | |
| 38020100 | 100 | 25 | 240 | 276 | 182 | 57 | 133 | 4 | 75 | 11,4 |